Правильно составленный план розеток и выключателей в квартире — основа удобной и безопасной системы электроснабжения. Он помогает избежать перегрузок, исключает необходимость сверлить стены после ремонта и предотвращает ситуацию, когда точка подключения оказывается за мебелью. Грамотная схема учитывает количество техники, особенности мебели, требования безопасности и перспективу развития — например, установку умного дома или дополнительной бытовой техники. Это экономит время, деньги и нервы на этапах монтажа и эксплуатации.
Рекомендации по расположению
розеток и выключателей
Ошибки на этапе проектирования часто приводят к неудобствам в повседневной жизни: не хватает электроточек, приходится пользоваться удлинителями. В отдельных случаях появляется риск перегрузки линии, возгорания или поражения током.
Чтобы избежать таких проблем, при составлении плана розеток и выключателей в квартире важно учитывать не только текущие потребности, но и перспективу. Весьма вероятно, что в ближайшие годы у вас появится новая техника, а совокупная мощность бытовых приборов возрастет. Поэтому лучше придерживаться ряда рекомендаций.
- добавьте 1–2 резервные розетки в каждой комнате;
- в кабинете, гостиной, на кухне — используйте блоки по 3–4 точки;
- проложите дополнительные кабели даже там, где сейчас не будет приборов, на случай установки новой техники в квартире.
Помните о возможности развития: умный дом, климат-контроль, видеонаблюдение — все это также требует электрического питания.
Помимо количества, стоит учесть и особенности расположения. Если вы новичок, то в этом деле лучше придерживаться стандартных правил.
Высота размещения
Эти значения приводятся в ПУЭ и СНиП, но все предписания носят рекомендательный характер. Тем не менее их стоит придерживаться. В противном случае одни точки окажутся закрыты мебелью, а другие будут неудобными для запитки электрических приборов.
Большинство точек подключения можно расположить на высоте 30 см от пола. Это универсальный уровень. Он позволяет запитать пылесос, утюг, торшер и другие приборы, не нагибаясь низко.
На кухне места подключения размещаются на высоте 10–15 см над столешницей. Это позволяет питать мелкую технику без провисания шнуров. В то же время расстояние в 15 сантиметров будет достаточным для того, чтобы избежать загрязнения контактов.
Выключатели лучше монтировать на высоте 90–110 см от пола. Такой уровень комфортен для большинства взрослых и подростков. В детской комнате можно установить дублирующий выключатель ниже для самостоятельного доступа.
Выбирая, где делать розетки, нужно учитывать расстановку мебели. Например, точка подключения телевизора в гостиной должна быть за техникой, но с доступом для обслуживания.
Техника безопасности
Электричество требует строгого соблюдения норм. Особенно это касается влажных и пыльных зон, такие как ванные комнаты, кухни, подвалы:
- В ванной комнате и на улице устанавливаются только влагозащищенные устройства с маркировкой IP44 и выше. Они имеют специальные шторки и закрывающиеся крышки.
- Запрещено размещать приборы ближе 60 см от источника воды: ванны, душевой кабины, мойки. Это требование ПУЭ.
- Ни в коем случае нельзя ставить розетки за встраиваемой техникой, если к ним нет свободного доступа. Иначе замена или ремонт станут невозможны без демонтажа всей мебели.
Разделение розеток на слаботочные и силовые
В современном доме есть не только свет, но и интернет, TV, домофон, сигнализация. Эти системы требуют отдельных слаботочных линий. Кабели, их образующие, чувствительны к электромагнитным помехам. Если проложить их рядом с силовыми проводами, возможно появятся сбои в работе Wi-Fi, помехи в звуке, потеря сигнала.
Чтобы избежать такого исхода, прокладывайте слаботочные линии на расстоянии не менее 20 см от силовых. В стенах это стоит делать в отдельных штробах. При большом количестве точек подключения нетрудно запутаться. Составив план размещения розеток, вы сможете предотвратить это. На схеме подключения электроприборов обозначьте точки под:
- LAN в кабинете и спальне — это разъемы для подключения проводного интернета;
- TV в гостиной;
- Wi-Fi роутер, IP-камеры, датчики умного дома.
Создание отдельных линий
Электроплита, духовой шкаф, бойлер, стиральная машина, теплые полы — это мощная техника. Подключать их к общей группе нельзя: это вызовет перегрузку и срабатывание автомата.
Что делать:
- ставить каждый мощный прибор на отдельную линию от электрощита;
- использовать кабель сечением 4 мм² при нагрузке до 6 кВт или 6 мм² от 6 кВт;
- устанавливать силовые розетки и автомат соответствующего номинала;
- для варочной панели и духового шкафа лучше задействовать две отдельные линии, даже если они стоят на кухне рядом.
Пример: если подключить бойлер и стиральную машину к одной линии, одновременный запуск вызовет срабатывание автомата. Разделение исключает такую ситуацию.

Как сделать проект электрики частного дома
Рассказываем, как выбрать электрооборудование, создать схему расположения розеток и подготовить смету. Приводим главные правила, которые помогут избежать ошибок.
Читать статьюДобавление приборов под «умный дом»
Если вы планируете в будущем создать систему автоматизации, важно знать: просто добавить «умные розетки» в готовую электрическую схему не получится, нужен комплексный подход:
- Для работы реле, датчиков, контроллеров требуется постоянное питание 220 В. Нужно добавить дополнительные выводы и пересчитать мощность линий с учетом будущей нагрузки.
- Некоторые устройства, например, датчики движения, подключаются через клеммы напрямую в распределительную коробку. Значит, нужно сохранить доступ к ней, а не закрывать ее штукатуркой.
- Почти всем приборам, которые будут подсоединены к системе, понадобится дополнительный кабель. Его лучше проложить заранее.
Нужна продуманная система, которая будет учитывать безопасность, текущие и будущие потребности, особенности интерьера и техники. Лучший способ избежать ошибок — сделать подробный план расположения розеток до начала ремонта.
Делаем план розеток в программе
Используйте Домашний Инженер 3D. Это простой инструмент для проектирования различных коммуникаций, который подходит как новичкам, так и профессионалам. Софт позволяет:
- разместить розетки, выключатели, светильники и слаботочные точки на 2D-плане;
- продумать расположение проводов с учетом типа и сечения;
- визуализировать монтаж объектов в интерьере;
- сформировать смету и экспортировать чертежи в PDF.
В программе можно спланировать размещение электроточек на любой поверхности, даже на полу. В базе уже есть каталог готовых объектов. В нем содержатся стандартные, проходные, перекрестные и мастер-выключатели, настенные, напольные и прочие розетки.
Но иногда бывают ситуации, когда даже такого разнообразия не хватает. В таком случае можно воспользоваться конструктором. Он позволяет собрать собственный блок из отдельных компонентов. Например, с его помощью можно делать двойные розетки или «гибриды».
Показываем пример плана расположения розеток в комнатах одноэтажного дома:
Функционал программы не ограничивается этим. В ней можно составить план электрики для всего дома. Для этого есть все необходимое:
- Готовый каталог электрического оборудования. В нем содержатся щиты, распределительные коробки различных конструкций, светорегуляторы, домофоны и другие приборы.
- Большой выбор проводниковой продукции. Программа позволяет работать с двух-, трех- и пятижильными кабелями сечением от 0,5 мм² до 10 мм². Помимо этого, в базе есть провода заземления, витые пары, HDMI, оптоволокно и прочие виды слаботочных коммуникаций.
- Коллекция светильников. В программе имеются торшеры, настольные лампы, потолочные люстры, бра, софиты и т. д.
Домашний Инженер 3D — это не только программа для проектирования, но и мощный инструмент визуализации. С ее помощью можно продумать интерьер. Софт позволяет работать в 2D и в 3D.
Чтобы ускорить проектирование дома, можно добавить чертеж в качестве подложки. Вам останется только нарисовать поверх него стены, и планировка будет готова. После этого стоит поменять отделку. В программе есть более 1200 текстур для украшения интерьера и экстерьера. Здесь присутствуют напольные покрытия, кровельные материалы, обои, различные виды кирпича.
На завершающем этапе работы с проектом можно меблировать комнаты и добавить технику. В базе содержится свыше 700 трехмерных моделей, у каждой из них настраивается несколько параметров: цвет отдельных частей, габариты, высота над полом.
Если вы хотите сэкономить на услугах специалистов и не потерять в качестве ремонта, вам не обойтись без специализированного ПО. Домашний Инженер 3D — отличный вариант для тех, кто не имеет профильного образования и опыта в планировании коммуникаций. Эта программа позволит быстро обучиться и составить полноценную схему расположения розеток и выключателей в квартире. Скачайте ее, и убедитесь во всем сами.
Попробуйте создать проект собственноручно!
Загрузите бесплатную версию Домашний Инженер 3D,
и спланируйте коммуникации своего дома.
Как расположить розетки в комнатах
Учитывайте функциональное назначение, количество техники и ее типы, особенности мебели.
Кухня
Это самое энергонасыщенное помещение. Многие виды кухонной бытовой техники требуют отдельных линий и удобных точек подключения.
Что установить:
- розеточную группу из 4-6 шт. над столешницей;
- силовые линии для варочной панели и духового шкафа;
- точки подключения для холодильника, вытяжки, посудомоечной машины;
- вывод HDMI для телевизора.
Часто при размещении забывают о количестве электроприборов, не имеющих стационарного положения. Это приводит к тому, что для включения блендера приходится обесточивать тостер.
Прихожая
В прихожей размещаются робот-пылесос, сушилка для обуви, домофон, Wi-Fi.
Что установить:
- 2–3 точки у пола под сушилку, зарядную станцию робота-пылесоса;
- слаботочный вывод под домофон или камеру;
- точка для подключения роутера.
В прихожей приборы появляются не так часто, как в других помещениях. Поэтому необходимость размещения розеток можно определять по имеющимся потребностям.
Гостиная
Гостиная обычно насыщена электроникой, нетребовательной к мощности линии. Тут стоит телевизор, колонки, консоль и т. д.
Что установить:
- розеточную группу из 3-4 шт. у ТВ-зоны;
- 2-4 шт. у дивана для светильников и зарядки;
- LAN и TV;
- резервные точки под проектор или умную колонку.
В этой зоне часто забывают добавить дополнительные розетки возле дивана, это приводит к проблемам с эргономикой. В целом нужно сделать запас.
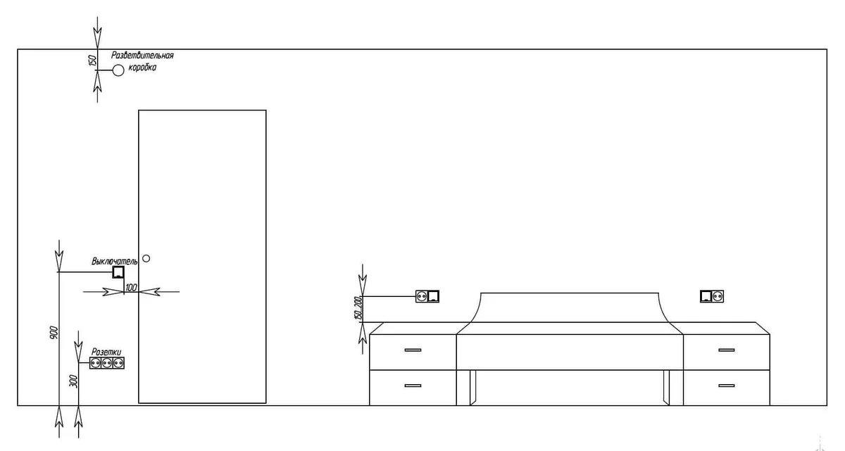
Спальня
Особенно важно соблюдать безопасность — не монтируйте точки слишком близко к кровати, чтобы возможное короткое замыкание не привело к пожару. С другой стороны, нужно обеспечить удобство доступа. Чтобы понять, как правильно разместить розетки, стоит тщательно продумать эргономику помещения и его интерьер.
Что установить:
- по 2 розетки с каждой стороны кровати;
- 1–2 точки у шкафа под утюг и фен;
- дополнительные электроточки в рабочей зоне и у туалетного столика, если они есть.
Детская
Все розетки в детской должны быть с защитными шторками, выключатели — вне досягаемости малыша. Если речь идет о комнате подростка, это необязательно.
Что установить:
- 2–3 розетки у рабочего стола;
- 1–2 у кровати под зарядку и бра;
- розетку под увлажнитель или очиститель воздуха;
- слаботочную точку под IP-камеру.
Часто родители забывают добавить резервные точки под игровую приставку, а также создать управление светом из кровати.
Ванная
В ванной действуют жесткие правила. Здесь используются влагозащищенные розетки с классом защиты не ниже IP44 со шторками. На каждую точку нужно отвести свое УЗО. Правила касаются и накладных розеток, и обычных.
Что установить:
- 1–2 влагозащищенные розетки под фен, бритву;
- отдельную линию для стиральной машины с сечением кабеля не менее 2,5 мм²;
- розетку для электрического полотенцесушителя.
В ванной часто забывают оставить хотя бы 1-2 дополнительных точки подключения, которые необходимы для зарядного устройства телефона и других аксессуаров.
Кабинет
Кабинет — зона высокой концентрации офисной техники. Следовательно, здесь нужны маломощные линии в большом количестве.
Что установить:
- 4–6 розеток под ПК, мониторы, принтер, лампу;
- LAN-розетку и резервный кабель;
- розетку на ИБП или сетевой фильтр;
- USB-выводы.
Заключение
Чтобы обеспечить безопасность и удобство своего жилья, важно знать, как правильно расположить розетки в квартире или доме. Можно руководствоваться простой схемой:
- Соберите данные: сколько есть и будет техники, где стоит мебель, какие нужны зоны.
- Разделите нагрузку, выделяя отдельные линии для мощных приборов.
- Учтите правила безопасности.
- Используйте программу — например, Домашний Инженер 3D, для подготовки проекта коммуникаций в читаемом виде.
- Рассчитайте смету на основе разработанного плана.
Ответы на популярные вопросы
Он помогает избежать ситуаций, когда после ремонта оказывается, что точки подключения закрыты мебелью или их не хватает. В проекте учитываются количество техники, особенности расстановки мебели и требования ПУЭ. Это снижает риск перегрузок и коротких замыканий. Кроме того, такой план необходим для составления сметы и точного выполнения монтажа электропроводки без ошибок.
Розетки в жилых помещениях принято устанавливать на высоте 30 см от пола. На кухне их дополнительно размещают в 10–15 см над столешницей. Выключатели монтируют на высоте 90–110 см от пола — это оптимальный уровень для взрослых.
Согласно ПУЭ, к одному автомату рекомендуется подключать не более 10 розеток. При этом суммарная нагрузка на линию не должна превышать номинальный показатель. На практике лучше ограничиться 5–6 розетками на комнату. Если все приборы маломощные, как в гостиной, то можно отступить от этого правила. Но в любом случае лучше разделять розеточные группы по помещениям: отдельная линия для кухни, ванной, спальни и т. д.
Радиальная схема электропроводки подразумевает, что от щита к каждой группе идет отдельный кабель. Она надежнее, проще в диагностике и соответствует требованиям ПУЭ. Кольцевая схема — это замкнутая линия, где розетки соединяются последовательно в кольцо, а начало и конец подключаются к одному автомату. Радиальная схема предпочтительна: она снижает риск перегрева и обеспечивает стабильное напряжение на всех точках.
УЗО защищает человека от поражения электрическим током при утечке. Оно моментально отключает питание при обнаружении разницы токов в фазе и нуле, что предотвращает травмы и пожары. Обычно в жилых комнатах используют УЗО с током срабатывания 30 мА, а для ванных — 10 мА.
Создать подробный план электрической системы можно в программе Домашний Инженер 3D. Это удобный инструмент для проектирования дома и коммуникаций в нем. Программа позволяет расставить на плане все электроустройства. Готовые чертежи можно сохранить в PDF и распечатать, чтобы передать электрику или строителям.